
津波で押し流されたがれきには、ありとあらゆるものが混ざり合っています。
がれき処理でまず重要なのは、がれきから可燃物や金属、土砂などを細かく分別する作業です。
弊社が提供する「SUPEX-Trommel System」は、韓国の国家プロジェクトで使用されている最終処分場からのゴミ分別システムです。
震災がれきに流用することできわめてスピーディー、且つ大規模な分別処理を実現します。

| 区分 | 大型選別システム | 中型選別システム | 小型選別システム |
|
|---|---|---|---|---|
| システム構成 | 処理能力 | 65m³/hr | 40m³/hr | 25m³/hr |
| システム規格 | 27.0×2.5×3.5m | 25.0×2.5×3.0m | 20.0×2.0×3.0m | |
| 設置面積 | 270m³ (27m×10m≒82坪) |
250m³ (25m×10m≒75坪) |
160m³ (20m×8m≒48坪) |
|
| 電源 | 3相 380V | |||
| 運転要員 | 3人 | 2人 | ||
| 処理効率 | 可燃物分離効率 | 95% | ||
| 掘削土砂分離効率 | 95% | |||

混合がれきは、まずは土砂と可燃物とに選別されます。次に土砂については、さらに精密に選別し、埋め戻しに再利用したり、再生路床材としてリサイクルします。
土砂を取り除いたゴミについては、可燃物と不燃物とに分離します。可燃物はごみ固形燃料として利用します。また、不燃物についても再生骨材などに再利用します。













| 型式 | トロンメル | トロンメル アンダーコンベア |
トロンメル オーバーコンベア |
|---|---|---|---|
| 小型選別システム | φ1600×L5000 | W1200 | W750×2本 |
| 中型選別システム | φ1600×L6000 | W1400 | W900×2本 |
| 大型選別システム | φ1600×L8000 | W1600 | W900×2本 |

韓国環境省は国庫支援を通して、全国1,170ヶ所の使用終了埋立地の整備と、242ヶ所の最終処分場使用延命事業を推進しています。




SUPEX-Trommel Systemは、韓国 FORCEBEL社の商標です。
![]()
PGSは津波土砂に含まれるがれき成分と土砂の細分選別を行なう装置です。
回転方向の異なるローターと網目を持つ内ドラムとの間に原料を投入し、解砕を行いながら、解砕翼(板羽)により強制的に内ドラム外部に排出します。
内ドラム外部に排出された原料は、内ドラムの外側に設置した解砕翼により外ドラムとの間で解砕され、強制的に外部に排出されます。



※いつでも津波土砂の持ち込み検査可能です。
振動する篩に上部からゴムのヘラを使い圧力をかける事で、解砕しながら強制的に篩目を通過させ、津波土砂を粒径別に選別します。
また、篩の構造で最も問題となる、目詰まりは、作用するゴムべらの圧力により同時に除去が出来るため、メンテナンスが容易な構造となっています。


| 型式 | 第一分別 | 第二分別 | 第三分別 |
|---|---|---|---|
| KA-1504005 | 150-40mm | 40-5mm | 5mm以下 |
| KA-1002002 | 100-20mm | 20-2mm | 2mm以下 |
| KB-15020 | 150-20mm | 20mm以下 | − |
| KB-10010 | 100-10mm | 10mm以下 | − |

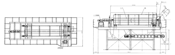
外形図(KA-150405型)

7品目に選別します。

